
Feel the Wind.
Sense the Season.
Hakone Pax Yoshino: experience Hakone Yumoto onsen and scenic views in our panoramic onsen and private open-air onsen.
About Us
Since opening in 1951 as Yoshino Ryokan, we later became Hakone Pax Yoshino. ‘Pax’ means serenity in Latin, while ‘Yoshino’ recalls the cherry blossoms of spring. Together, the name carries our wish to offer guests moments of ease and comfort.
We welcome you with smiles and soothing onsen, hoping your special day will become a day to remember.
Onsen (Hot spring)
Listen to the gentle flow of the Sukumo River, and soak in the soothing warmth of onsen.
In every season, nature reveals its colors and moods, embracing you with quiet moments of bliss.





About
private open-Air onsen
“Kumo”
“Hoshi”
“Tsuki”
- Opening Hours
-
Hours: 12:00 - 23:00 / Last Entry: 22:00
Each session is for 60 minutes. - How to Reserve
- Reservations are accepted on a first-come, first-served basis on the day of your visit. Please request your desired time slot when you check in. *Please note that we do not accept reservations prior to check-in.
- Price
-
For hotel guests and day-use plan customers: Available for a fee of 3,300 JPY (tax included) per room.
This private onsen is available only to overnight and day-use guests. Walk-in use is not accepted. - Amenities
- Shampoo, conditioner, body soap, razors, hairbrushes, cotton swabs, and more.
About
public onsen
“Katsura”
“Kinu”
-
Opening Hours
“Katsura” -
Men: 15:00 – 02:00
Women: 05:00 – 09:30 *separate hours for men and women -
Opening Hours
“Kinu” -
Women: 15:00 – 02:00
Men: 05:00 – 09:30 *separate hours for men and women - Notes
-
- Closed from 02:00 – 05:00 for cleaning
- Hours may switch between men and women
- Please see here for the rules for entering the big public bath.
History of Yumoto Onsen

Since the time of the fourth shogun, Ietsuna, during the Edo period, Yumoto Onsen has been known among the townspeople of Edo as one of the ‘Seven Hot Springs of Hakone,’ along with Tonosawa, Dogashima, Miyanoshita, Sokokura, Kiga, and Ashinoyu. Among them, Yumoto is said to have the longest history, dating back to the year 738—more than a thousand years ago.
Yumoto Onsen is an alkaline simple spring, clear and almost odorless, yet known for easing neuralgia and other ailments. Many come hoping to benefit from its restorative qualities. Guests can enjoy the same spring water in their room baths, where the pipes wear out more quickly than with tap water, demanding extra care—but we remain committed to delivering fresh, high-quality hot spring water straight from the source to our guests.
The Legend of Kannonsawa Sacred Spring

In the early Edo period, a traveler on his way to Kyoto passed through Yumoto and was attacked by bandits. Stripped of his belongings, he was thrown into the deep valley of the Sukumo River. A devout believer in Kannon, the traveler was caught by a tree and lost consciousness. When he awoke, he found himself revived by the warmth of a spring and informed the villagers of Sukumo of this miraculous water.
From then on, the spring came to be known as Kannonsawa. The traveler built a small hermitage and enshrined a statue of Kannon, dedicating his life to prayer. Locals revered him as ‘Kannonsawa Shōnin,’ the holy man of Kannonsawa. In time, the spring became widely celebrated, even praised as the ‘Spring of Long Life and Beauty.’
※Ext and images quoted from the official website of Hakone Kannon Fukujuin.
Rooms
Nestled in Hakone’s tranquil surroundings of water and greenery, our hotel lets you soak in Onsen water in your room’s bath or shower.*
Take in the natural scenery beyond your window as you relax in comfort.
*Available in most guest rooms.


Deluxe Japanese-Western Style Room with Private Semi Open-Air Onsen (Riverside)
The gentle murmur of the Sukumo River flows past the private terrace. Soak in the cypress semi-open-air hot spring bath, and unwind in the spacious Japanese-Western style room, designed for guests of all ages.
- Room Count
- 9
- Max Occupancy
- 4 guests
- No. of Beds
- 2 * Two sets of futons (Please lay out the futons on the tatami mats yourself.)
- Bed size
- Single (Width 100 × Length 200 cm)
- Size
- 45㎡ (Western-style room + Japanese-style room + terrace)
- Others
- Hinoki bath, Bidet toilet, non-smoking
*Furniture, interior design, and wall decor vary by room.


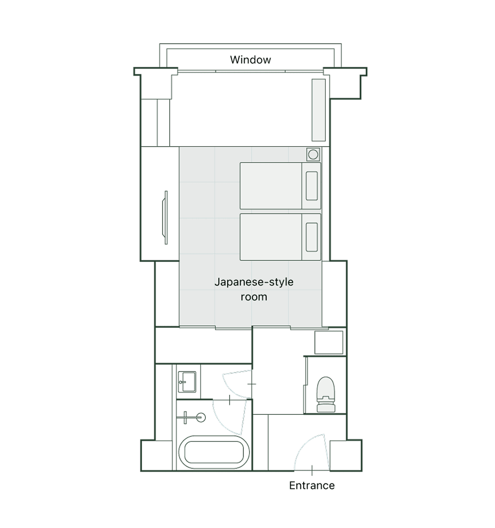
Standard Japanese-Style Room with indoor Onsen(Riverside)
A serene Japanese room, filled with the soothing scent of tatami. Unwind in the indoor hot spring bath at your leisure, while gazing at the gentle flow of the Sukumo River.
- Room Count
- 6
- Max Occupancy
- 4 guests
- Size
- 39㎡ - 45㎡ (8 or 10-tatami room)
- Others
- Bidet toilet, non-smoking
*Furniture, interior design, and wall decor vary by room.


Superior Japanese-style Hollywood twin room with indoor Onsen (Riverside)
Hollywood twin with two semi-double beds. Relax in the indoor hot spring bath accompanied by music, and take in riverside views of the Sukumo River and Mount Yusaka.
- Room Count
- 11
- Max Occupancy
- 3 guests
- No. of Beds
- 2 * One sets of futons (Please lay out the futons on the tatami mats yourself.)
- Bed size
-
Semi-Double
(Width 120 × Length 200 cm) - Size
- 45㎡
- Others
- Bidet toilet, non-smoking
*Furniture, interior design, and wall decor vary by room.

Cuisine
Savor dishes crafted with carefully selected ingredients, prepared with care to be enjoyed at both breakfast and dinner.


Dinner Menu
Celebrate the seasons with a kaiseki course prepared from peak-season ingredients.
Our menu changes four times a year, each time highlighting the treasures of land and sea.Enjoy the flavors of the season with plump, freshly steamed rice cooked in a traditional kamado pot.
Facilities
Our hotel offers a lobby, lounge, and gift shop for your convenience.
After a soothing soak in the hot springs, enjoy in-house activities such as table tennis or karaoke.


Reception
Open 24 hours a day to welcome and assist you at any time.

Lobby & Library
Browse a selection of Hakone guidebooks, picture books, and photo collections, enjoyable for both children and adults. Our complimentary drink corner offers coffee, tea, and ice pops. Take your time and unwind.
Open hours
Free Drink Corner 24 hours
*Coffee: 7:30 - 23:00
*Ice Pops: 15:00 - 18:00

Shop
Explore a wide variety of items, from steamed sweet buns (onsen manju) and local specialties to our exclusive original products.
Open hours
7:30 – 21:30

Hanamizuki Lounge
A comfortable space where you can relax, whether enjoying time with others or spending a quiet moment alone.

Sora - Relaxation Lounge
A spacious lounge where you can unwind and take in the views of Mt. Yusaka after your onsen bath.

Kid's corner
A cozy play area with toys and picture books, so even small children can enjoy themselves while parents relax.

Table Tennis Room
After relaxing in the hot springs, enjoy a game of table tennis. Share fun moments with family and friends. Please check with the front desk.
Open hours
9:00 - 24:00

Karaoke Room
“Ajisai” “Yamayuri”
You can also enjoy it for family gatherings or after-parties with friends. Two private rooms are available: Yamayuri (up to 7 guests) and Ajisai (up to 12 guests).
Open hours
20:00 - 24:00
Location & Access
Located about 90 minutes from central Tokyo, our hotel is just a 5-minute shuttle ride from Hakone-Yumoto Station.
We also provide guidance for guests arriving by train or car.
Access by Car

Access by Train

Access by Shuttle Bus

Schedules vary by day and season. Please check the “Shuttle Bus for Ryokans in Hakone-Yumoto” page for the latest timetable.
- Ages 12 and over
- 200 JPY (one-way)
- Ages 6 to 11
- 100 JPY (one-way)
- Under 6 years old
- Free
Shuttle Bus Stand

Local experience
Hakone offers a wealth of attractions, from the natural splendor of Mount Fuji to historic landmarks and renowned art museums.
During your stay, take time to discover the sights and experiences unique to this region.

Hakone & Nature
mountains mirrored in clear skies, lakes and wetlands alive with shifting colors, and the silhouette of Mount Fuji standing in quiet grace.
From the brilliance of fresh greenery and hydrangeas in early summer, to the fiery hues of autumn leaves and the hush of winter snow, each visit reveals a new beauty that gently renews the spirit.
Savor the unique natural wonders that only Hakone can offer.

Mt. Fuji seen from Owakudani
On clear days, you can see Mt. Fuji from Owakudani.
Its silhouette against the blue sky has a quiet dignity.
Take the ropeway for sweeping views of Mt. Fuji, Lake Ashi, and the Owakudani crater—an experience that reveals the richness of Hakone’s nature.
This view, when seen on a clear day, will remain a memorable part of your journey.

Hakone Komagatake Ropeway
“Ashi no SORA”
- Details
- Official Website Google Map

Old Tokaido Stone Pavement

Mt. Kintoki
- Details
-
Kintokizan Google Map

Pampas Grass (Fields)
Hakone & Culture
From the dignified Hakone Shrine and time-honored temples to historic sites that still echo with traces of the past, its legacy endures.
The refined craftsmanship of yosegi-zaiku woodwork and the vibrant performances of geisha continue to enchant visitors.
We invite you to experience the depth and richness of Hakone’s unique culture.

Hakone Checkpoint

Odawara Castle
- Details
- Official Website Google Map

Soun-ji Temple

Hakonekannon Fukujyuin
- Details
- Official Website Google Map
Hakone & Art
From Japanese and Western art to sculpture, painting, crafts, and contemporary works, carefully curated pieces are enhanced by the beauty of the four seasons, offering visitors fresh inspiration.
Take a moment to connect with nature and enjoy the art you encounter in Hakone.

The Hakone Open-Air Museum
- Details
- Official Website Google Map

Okada Museum of Art
- Details
- Official Website Google Map

Narukawa Art Museum
- Details
- Official Website Google Map

Lalique Museum, Hakone
- Details
- Official Website Google Map

Pola Museum of Art
- Details
- Official Website Google Map
FAQ
For general inquiries, please check our FAQ or use the chatbot located at the bottom right corner of the page.
For check-in, there are shuttle bus services ,so-called Orange bus, run to and from Hakone Yumoto Station and Hakone Pax Yoshino to pick up guests for 200 yen per adult per way. Choose A route for Takidoori.Timetable here: subject to change without notice.
All of our rooms are now compatible with free Wi-Fi.
Please book a room category that does not show “Smoking.” We are unable to confirm non-smoking room requests if you book a smoking room rate or category.
We try to use spray deodrizer to remove smoking odors upon request but not guaranteed to remove it perfectly. There will be less of an odor but it will still be somewhat present. Not recommended for a guest having asthama.
Dinner reservations can be made the same day as check-in up to 16:00 for an additional fee. However, there may be times when the restaurant is full and a reservation cannot be made. We recommend selecting an accommodation package that includes dinner or half-board, or e-mailing us your request as soon as possible.
Generally there are not many places to eat dinner at Hakone Yumoto Onsen around the hotel. We recommend having dinner around Odawara Station before arriving at Hakone Yumoto Onsen or selecting an accommodation package that includes dinner.
Yes, of course guests are free to bring children in the restaurant. However, all of our tables require a reservation and how many children must be stated in advance. Also, please e-mail us if you would like to share a table with a party with a different reservation. We cannot change table reservations upon check in day.
The final call for orders is at 19:30. Please be aware that we may not be able to make preparations for dinner if you arrive after 19:30.
Unfortunately we are unable to confirm personal food arrangent request such as an allergy, Vegetarian, Kosher, Halal, Gluten free ,likes-and-dislikeness and so on.
There are some Japanese people who might identify people with tattoos as associated with anti-social groups, therefore guests with tattoos cannot enter the big public bath regardless of the tattoo size. Please use the private open-air bath (fee) or the bath in your room. Guests can use the big public bath if the tattoos are covered with a sticker, etc.
Yes. We accept all of the following major credit cards. VISA, Amex, MasterCard, Diners Card, UnionPay Card
Please see here the rules for entering the big public bath.